Kraków, Bieżanów-Prokocim, Złocień

Mieszkanie na sprzedaż

Opis nieruchomości

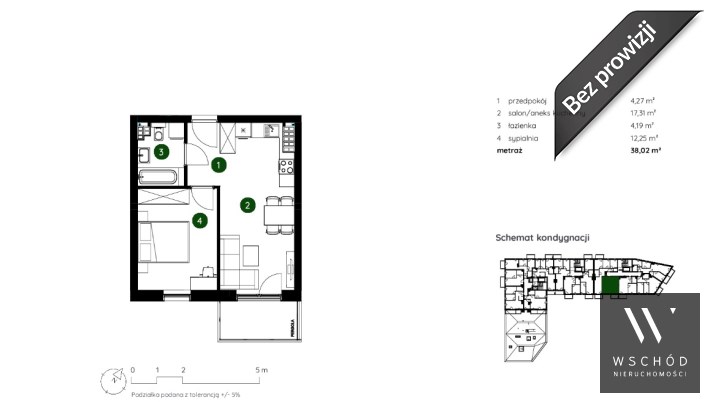
Wszystkie mieszkania dostępne bez prowizji oraz 2% PCC

Promocyjna cena do 31.10
W cenie mieszkania miejsce garażowe + system smart home premium


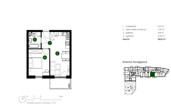
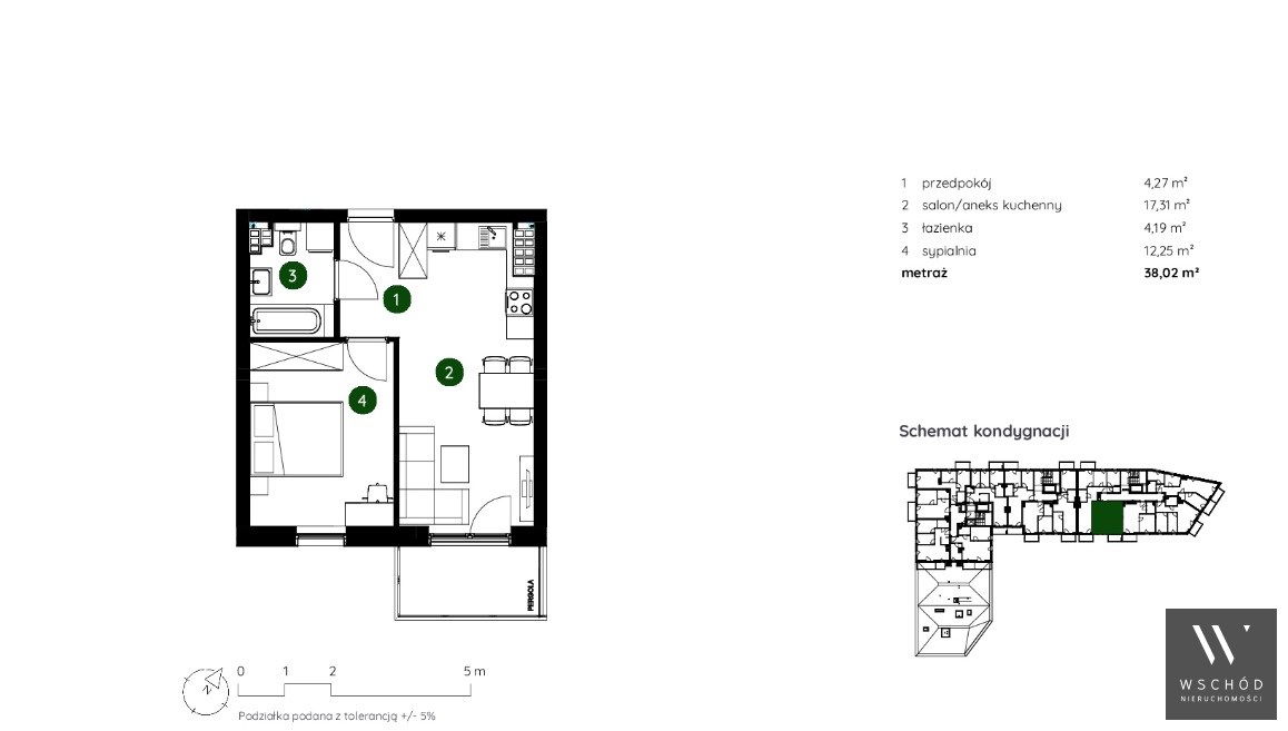
Komfortowe 2 pokojowe mieszkanie o pow. 38m2 położone na 4 piętrze 4 piętrowego bloku z windą. 
Mieszkanie składające się z salonu z aneksem kuchennym, sypialni, przedpokoju, łazienki, oraz balkonu
  • Mieszkania oddawane w stanie deweloperskim
  • Ogrzewanie oraz ciepła woda MPEC
  • Komórki lokatorskie: 7000zł /m2
  • Ekspozycja okien: południowy wschód
  • Termin oddania inwestycji: II kw. 2027r
  • Bardzo dobra lokalizacja: w sąsiedztwie szkoła podstawowa, przystanek autobusowy, market ATUT, Szybka Kolej SKA
Zapraszam do kontaktu
Agnieszka Nowak tel. 666 312 237
  • Kupując mieszkanie za naszym pośrednictwem nie płacisz prowizji , wszystkie ceny mieszkań są cenami Dewelopera wraz z aktualnymi promocjami
  • Otrzymujesz karty rabatowe -15% do sklepów Bel - Pol oraz kupon rabatowy -10% do sklepów Leroy Merlin
  • Dodatkowo możesz skorzystać z darmowej obsługi Doradcy Kredytowego firmy Notus oraz oferty firmy wykończeniowej Excellent

 

Nota prawna

Opis oferty zawarty na stronie internetowej sporządzany jest na podstawie oględzin nieruchomości oraz informacji uzyskanych od właściciela, może podlegać aktualizacji i nie stanowi oferty określonej w art. 66 i następnych K.C.

Szczegóły oferty

Symbol oferty WSCH-MS-6957
Powierzchnia 38,02 m²
Liczba pokoi 2
Piętro 4
Rodzaj budynku blok
Technologia budowlana mieszana
Standard
Opłaty w czynszu Winda, sprzątanie, ogrzewanie, CO
Opłaty wg liczników prąd
Liczba pięter w budynku 4
Garaż garaż pod budynkiem
Stan lokalu deweloperski
Okna PCV
Balkon średni
Liczba balkonów 1
Rok budowy 2027
Gaz brak
Ogrzewanie C.O. miejskie
Winda tak
Usytuowanie jednostronne

Lokalizacja

Kalkulator kredytowy

PLN
%
Wysokość raty

Kalkulator kosztów

PLN
PLN
PLN
PLN
PLN
PLN
%
PLN
Podatek od czynności cywilno-prawnych
Taksa notarialna (opłata notarialna)
VAT od taksy notarialnej (opłaty notarialnej)
Wniosek do WKW
VAT od wniosku do WKW
Prowizja agencji nieruchomości
VAT od prowizji agencji nieruchomości
Wypisy aktu notarialnego - około
RAZEM (cena + opłaty)

Podobne oferty

bez prowizji
mieszkanie na sprzedaż - Kraków, Prądnik Biały

mieszkanie na sprzedaż

Kraków, Prądnik Biały
2 pokoje 39,76 m2 16 975,00 zł/m2
bez prowizji
mieszkanie na sprzedaż - Kraków, Bieżanów-Prokocim, Złocień

mieszkanie na sprzedaż

Kraków, Bieżanów-Prokocim, Złocień
2 pokoje 40,24 m2 15 650,00 zł/m2
bez prowizji
mieszkanie na sprzedaż - Kraków, Bieżanów-Prokocim, Złocień

mieszkanie na sprzedaż

Kraków, Bieżanów-Prokocim, Złocień
2 pokoje 39,99 m2 16 150,00 zł/m2
bez prowizji
mieszkanie na sprzedaż - Kraków, Bieżanów-Prokocim, Złocień

mieszkanie na sprzedaż

Kraków, Bieżanów-Prokocim, Złocień
3 pokoje 49,54 m2 14 550,00 zł/m2

Napisz do nas

Proszę wypełnić to pole
Proszę wypełnić to pole
Proszę wypełnić to pole
Proszę wypełnić to pole
Trwa wysyłanie...

Ta strona wykorzystuje pliki cookies w celach statystycznych oraz w celu dostosowania naszych serwisów do indywidualnych potrzeb klientów. Zmiany ustawień dotyczących plików cookie można dokonać w dowolnej chwili modyfikując ustawienia przeglądarki. Korzystanie z tej strony bez zmian ustawień dotyczących cookies oznacza, że będą one zapisane w pamięci urządzenia.

rozumiem