Kraków, Podgórze, Zabłocie

Mieszkanie na sprzedaż

Opis nieruchomości

Wszystkie mieszkania dostępne bez prowizji dla Klienta Kupującego

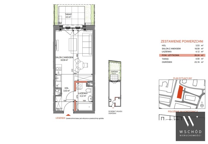
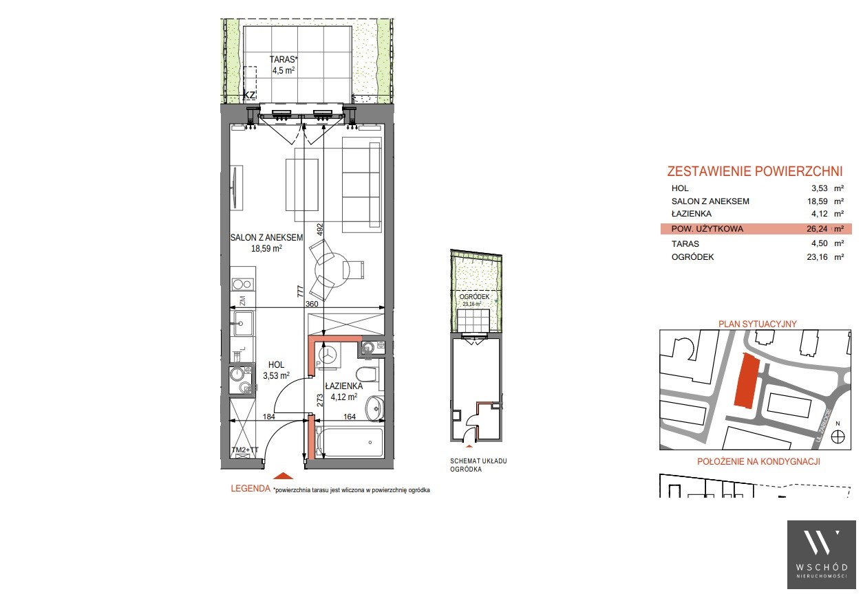
Do sprzedania komfortowa garsoniera  o pow. 26 m2 położone na parterze 5 piętrowego bloku. 
Mieszkanie składające się z salonu z aneksem kuchennym,, przedpokoju, łazienki oraz ogródka
  • Ekspozycja okien:  zachód
  • Mieszkania oddawane w stanie deweloperskim 
  • Możliwość zakupu miejsca postojowego w hali garażowej
  • Bardzo dobra lokalizacja, inwestycja idealnie nadaje się pod zakup inwestycyjny czy mieszkanie dla siebie w w sąsiedztwie m.in.  linie tramwajowe, Bulwary Krakowskie, Krakowska Akademia, Hala Lipowa, MOCAK, Zabłocie Businnes Park, Park Przy stawie Płaszowskim, Rynek Podgórski, Rynek Kazimierski
  • Termin realizacji inwestycji: IV kwartał 2025r
Zapraszam na spotkanie
Agnieszka Nowak tel. 666 312 237

Nota prawna

Opis oferty zawarty na stronie internetowej sporządzany jest na podstawie oględzin nieruchomości oraz informacji uzyskanych od właściciela, może podlegać aktualizacji i nie stanowi oferty określonej w art. 66 i następnych K.C.

Szczegóły oferty

Symbol oferty WSCH-MS-7028
Powierzchnia 26,24 m²
Powierzchnia balkonów/tarasów 23,16 m²
Liczba pokoi 1
Piętro parter
Rodzaj budynku blok
Technologia budowlana żelbeton
Standard
Opłaty w czynszu Winda, woda ciepła, ogrzewanie, CO, fundusz remontowy
Liczba pięter w budynku 5
Garaż miejsce garażowe
Stan lokalu deweloperski
Okna PCV
Instalacje nowe
Balkon jest
Liczba balkonów 1
Rok budowy 2025
Gaz brak
Dojazd asfalt
Winda tak
Usytuowanie jednostronne

Pomieszczenia

Rodzaj kuchni aneks kuchenny - połączony z salonem

Kalkulator kredytowy

PLN
%
Wysokość raty

Kalkulator kosztów

PLN
PLN
PLN
PLN
PLN
PLN
%
PLN
Podatek od czynności cywilno-prawnych
Taksa notarialna (opłata notarialna)
VAT od taksy notarialnej (opłaty notarialnej)
Wniosek do WKW
VAT od wniosku do WKW
Prowizja agencji nieruchomości
VAT od prowizji agencji nieruchomości
Wypisy aktu notarialnego - około
RAZEM (cena + opłaty)

Podobne oferty

bez prowizji
mieszkanie na sprzedaż - Kraków, Prądnik Biały

mieszkanie na sprzedaż

Kraków, Prądnik Biały
2 pokoje 39,76 m2 16 975,00 zł/m2
bez prowizji
mieszkanie na sprzedaż - Kraków, Bieżanów-Prokocim, Złocień

mieszkanie na sprzedaż

Kraków, Bieżanów-Prokocim, Złocień
2 pokoje 40,24 m2 15 650,00 zł/m2
bez prowizji
mieszkanie na sprzedaż - Kraków, Bieżanów-Prokocim, Złocień

mieszkanie na sprzedaż

Kraków, Bieżanów-Prokocim, Złocień
2 pokoje 39,99 m2 16 150,00 zł/m2
bez prowizji
mieszkanie na sprzedaż - Kraków, Bieżanów-Prokocim, Złocień

mieszkanie na sprzedaż

Kraków, Bieżanów-Prokocim, Złocień
3 pokoje 49,54 m2 14 550,00 zł/m2

Napisz do nas

Proszę wypełnić to pole
Proszę wypełnić to pole
Proszę wypełnić to pole
Proszę wypełnić to pole
Trwa wysyłanie...

Ta strona wykorzystuje pliki cookies w celach statystycznych oraz w celu dostosowania naszych serwisów do indywidualnych potrzeb klientów. Zmiany ustawień dotyczących plików cookie można dokonać w dowolnej chwili modyfikując ustawienia przeglądarki. Korzystanie z tej strony bez zmian ustawień dotyczących cookies oznacza, że będą one zapisane w pamięci urządzenia.

rozumiem