Opis nieruchomości
Wszystkie mieszkania dostępne bez prowizji dla Klienta Kupującego
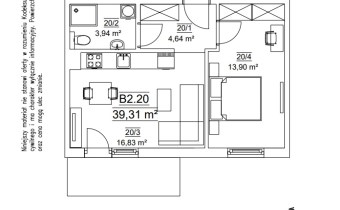
Komfortowe 2 pokojowe mieszkanie o pow. 39m2 położone na 1 piętrze 2 piętrowego bloku.
Mieszkanie składające się z salonu z aneksem kuchennym z wyjściem na balkon, sypialni, przedpokoju, łazienki.
- Mieszkanie w stanie deweloperskim: ogrzewanie podłogowe, klimatyzacja wraz z jednostkami, płytki na balkonie, okna PCV
- Kameralna niska zabudowa
- Miejsce postojowe w hali garażowej: od 38.000zł (zakup obowiązkowy)
- Osiedle ogrodzone, kameralna niska zabudowa, otoczenie niskich bloków oraz domów jednorodzinnych.
- W sąsiedztwie : 200m przystanek autobusowy Bunscha, 900m pętla Czerwone Maki, Centrum Handlowe ATUT, LIDL
-
Zapraszam na prezentację
Agnieszka Nowak tel. 666 312 237
Nota prawna
Opis oferty zawarty na stronie internetowej sporządzany jest na podstawie oględzin nieruchomości oraz informacji uzyskanych od właściciela, może podlegać aktualizacji i nie stanowi oferty określonej w art. 66 i następnych K.C.