Kraków, Dębniki, Ruczaj

Mieszkanie na sprzedaż

Opis nieruchomości

Wszystkie mieszkania dostępne bez prowizji dla Klienta Kupującego

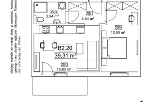
Komfortowe 2 pokojowe mieszkanie o pow. 39m2 położone na 1 piętrze 2 piętrowego bloku. 
Mieszkanie składające się z salonu z aneksem kuchennym z wyjściem na balkon, sypialni, przedpokoju, łazienki.
  • Mieszkanie w stanie deweloperskim: ogrzewanie podłogowe, klimatyzacja wraz z jednostkami, płytki na balkonie, okna PCV
  • Kameralna niska zabudowa
  • Miejsce postojowe w hali garażowej: od 38.000zł (zakup obowiązkowy)
  • Osiedle ogrodzone, kameralna niska zabudowa, otoczenie niskich bloków oraz domów jednorodzinnych. 
  • W sąsiedztwie : 200m przystanek autobusowy Bunscha, 900m pętla Czerwone Maki, Centrum Handlowe ATUT, LIDL
  •  
Zapraszam na prezentację
Agnieszka Nowak tel. 666 312 237


Nota prawna

Opis oferty zawarty na stronie internetowej sporządzany jest na podstawie oględzin nieruchomości oraz informacji uzyskanych od właściciela, może podlegać aktualizacji i nie stanowi oferty określonej w art. 66 i następnych K.C.

Szczegóły oferty

Symbol oferty WSCH-MS-7294
Powierzchnia 39,31 m²
Powierzchnia balkonów/tarasów 5,50 m²
Liczba pokoi 2
Piętro 1
Rodzaj budynku blok
Liczba pięter w budynku 2
Garaż garaż pod budynkiem
Stan lokalu deweloperski
Okna PCV
Liczba balkonów 1
Rok budowy 2025
Gaz brak
Winda tak
Liczba wind 1
Usytuowanie jednostronne

Kalkulator kredytowy

PLN
%
Wysokość raty

Kalkulator kosztów

PLN
PLN
PLN
PLN
PLN
PLN
%
PLN
Podatek od czynności cywilno-prawnych
Taksa notarialna (opłata notarialna)
VAT od taksy notarialnej (opłaty notarialnej)
Wniosek do WKW
VAT od wniosku do WKW
Prowizja agencji nieruchomości
VAT od prowizji agencji nieruchomości
Wypisy aktu notarialnego - około
RAZEM (cena + opłaty)

Podobne oferty

bez prowizji
mieszkanie na sprzedaż - Kraków, Prądnik Biały

mieszkanie na sprzedaż

Kraków, Prądnik Biały
2 pokoje 39,76 m2 16 975,00 zł/m2
bez prowizji
mieszkanie na sprzedaż - Kraków, Bieżanów-Prokocim, Złocień

mieszkanie na sprzedaż

Kraków, Bieżanów-Prokocim, Złocień
2 pokoje 40,24 m2 15 650,00 zł/m2
bez prowizji
mieszkanie na sprzedaż - Kraków, Bieżanów-Prokocim, Złocień

mieszkanie na sprzedaż

Kraków, Bieżanów-Prokocim, Złocień
2 pokoje 39,99 m2 16 150,00 zł/m2
bez prowizji
mieszkanie na sprzedaż - Kraków, Bieżanów-Prokocim, Złocień

mieszkanie na sprzedaż

Kraków, Bieżanów-Prokocim, Złocień
3 pokoje 49,54 m2 14 550,00 zł/m2

Napisz do nas

Proszę wypełnić to pole
Proszę wypełnić to pole
Proszę wypełnić to pole
Proszę wypełnić to pole
Trwa wysyłanie...

Ta strona wykorzystuje pliki cookies w celach statystycznych oraz w celu dostosowania naszych serwisów do indywidualnych potrzeb klientów. Zmiany ustawień dotyczących plików cookie można dokonać w dowolnej chwili modyfikując ustawienia przeglądarki. Korzystanie z tej strony bez zmian ustawień dotyczących cookies oznacza, że będą one zapisane w pamięci urządzenia.

rozumiem