Kraków, Bronowice

Mieszkanie na sprzedaż

Opis nieruchomości

Bronowice

Mieszkanie gotowe do odbioru, dostępne bez prowizji oraz 2% PCC


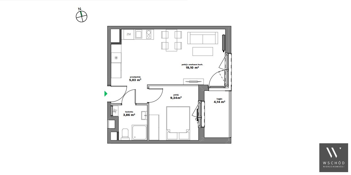
Komfortowe 2 pokojowe mieszkanie o pow. 37m2 położone na 1 piętrze 5 piętrowego bloku. 
Mieszkanie składające się z salonu z aneksem kuchennym, sypialni, przedpokoju , łazienki oraz loggi. 
  • Mieszkanie oddawane w stanie deweloperskim
  • Ekspozycja okien: wschód
  • Miejsce postojowe na platformie parkingowej: 35.000zł
  • Mieszkanie gotowe do odbioru
Zapraszam na prezentację
Agnieszka Nowak tel. 666 312 237

 
  • Kupując mieszkanie za naszym pośrednictwem nie płacisz prowizji , wszystkie ceny mieszkań są cenami Dewelopera wraz z aktualnymi promocjami
  • Otrzymujesz karty rabatowe -15% do sklepów Bel - Pol oraz kupon rabatowy -10% do sklepów Leroy Merlin
  • Dodatkowo możesz skorzystać z darmowej obsługi Doradcy Kredytowego firmy Notus

Nota prawna

Opis oferty zawarty na stronie internetowej sporządzany jest na podstawie oględzin nieruchomości oraz informacji uzyskanych od właściciela, może podlegać aktualizacji i nie stanowi oferty określonej w art. 66 i następnych K.C.

Szczegóły oferty

Symbol oferty WSCH-MS-7005
Powierzchnia 37,44 m²
Powierzchnia balkonów/tarasów 4,14 m²
Liczba pokoi 2
Piętro 1
Rodzaj budynku blok
Standard
Opłaty w czynszu CO
Liczba pięter w budynku 5
Stan lokalu deweloperski
Okna PCV
Balkon loggia
Liczba balkonów 1
Rok budowy 2025
Gaz brak
Dojazd asfalt
Winda tak
Usytuowanie jednostronne

Kalkulator kredytowy

PLN
%
Wysokość raty

Kalkulator kosztów

PLN
PLN
PLN
PLN
PLN
PLN
%
PLN
Podatek od czynności cywilno-prawnych
Taksa notarialna (opłata notarialna)
VAT od taksy notarialnej (opłaty notarialnej)
Wniosek do WKW
VAT od wniosku do WKW
Prowizja agencji nieruchomości
VAT od prowizji agencji nieruchomości
Wypisy aktu notarialnego - około
RAZEM (cena + opłaty)

Podobne oferty

bez prowizji
mieszkanie na sprzedaż - Kraków, Prądnik Czerwony

mieszkanie na sprzedaż

Kraków, Prądnik Czerwony
2 pokoje 46,01 m2 16 952,84 zł/m2
bez prowizji
mieszkanie na sprzedaż - Kraków, Prądnik Biały

mieszkanie na sprzedaż

Kraków, Prądnik Biały
2 pokoje 39,76 m2 16 975,00 zł/m2
bez prowizji
mieszkanie na sprzedaż - Kraków, Bieżanów-Prokocim, Złocień

mieszkanie na sprzedaż

Kraków, Bieżanów-Prokocim, Złocień
2 pokoje 40,24 m2 15 650,00 zł/m2
bez prowizji
mieszkanie na sprzedaż - Kraków, Bieżanów-Prokocim, Złocień

mieszkanie na sprzedaż

Kraków, Bieżanów-Prokocim, Złocień
2 pokoje 39,99 m2 16 150,00 zł/m2

Napisz do nas

Proszę wypełnić to pole
Proszę wypełnić to pole
Proszę wypełnić to pole
Proszę wypełnić to pole
Trwa wysyłanie...

Ta strona wykorzystuje pliki cookies w celach statystycznych oraz w celu dostosowania naszych serwisów do indywidualnych potrzeb klientów. Zmiany ustawień dotyczących plików cookie można dokonać w dowolnej chwili modyfikując ustawienia przeglądarki. Korzystanie z tej strony bez zmian ustawień dotyczących cookies oznacza, że będą one zapisane w pamięci urządzenia.

rozumiem