Kraków, Prądnik Biały

Mieszkanie na sprzedaż

Opis nieruchomości

Prądnik Biały
Mieszkanie dostępne bez prowizji oraz 2% PC


Promocyjna cena  obowiązująca do końca marca
W cenie mieszkania: miejsce garażowe oraz system smart home

Łączny rabat 76 600zł



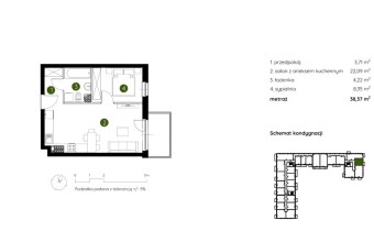
Do sprzedania komfortowe 2 pokojowe mieszkanie o pow.38m2 położone na 3 piętrze 4 piętrowego bloku. 
Mieszkanie składające się z salonu z aneksem kuchennym , sypialni, przedpokoju, łazienki  oraz balkonu
  • Ekspozycja okien: północny wschód
  • Komórka lokatorska: 4000zł /m2 
  • Termin oddania inwestycji: IV kwartał 2027r
  • Mieszkania oddawane w stanie deweloperskim, pakiet antysmogowy
  • Stacja ładowania samochodów elektrycznych , plac zabaw, stojaki rowerowe 
  • Atrakcyjna lokalizacja - bardzo dobry dojazd do centrum Krakowa, w odległości 10min pieszo przystanek tramwajowy Pachońskiego P&R, przystanek autobusowy w sąsiedztwie osiedla
  • Dojazd do Starego Miasta to zaledwie 10minut tramwajem , tylko 6 przystanków do Galerii Krakowskiej
Zapraszam do kontaktu
Agnieszka Nowak tel. 666 312 237

Wschód nieruchomości
 

Nota prawna

Opis oferty zawarty na stronie internetowej sporządzany jest na podstawie oględzin nieruchomości oraz informacji uzyskanych od właściciela, może podlegać aktualizacji i nie stanowi oferty określonej w art. 66 i następnych K.C.

Szczegóły oferty

Symbol oferty WSCH-MS-7613
Powierzchnia 38,37 m²
Powierzchnia użytkowa 38,37 m²
Liczba pokoi 2
Piętro 3
Rodzaj budynku blok
Technologia budowlana pustak ceramiczny
Standard
Opłaty w czynszu woda ciepła, Winda, sprzątanie, ogrzewanie, CO
Opłaty wg liczników prąd
Liczba pięter w budynku 4
Garaż garaż pod budynkiem
Stan lokalu deweloperski
Okna PCV
Instalacje nowe
Balkon średni
Liczba balkonów 1
Rok budowy 2027
Winda tak
Liczba wind 2
Usytuowanie jednostronne

Lokalizacja

Kalkulator kredytowy

PLN
%
Wysokość raty

Kalkulator kosztów

PLN
PLN
PLN
PLN
PLN
PLN
%
PLN
Podatek od czynności cywilno-prawnych
Taksa notarialna (opłata notarialna)
VAT od taksy notarialnej (opłaty notarialnej)
Wniosek do WKW
VAT od wniosku do WKW
Prowizja agencji nieruchomości
VAT od prowizji agencji nieruchomości
Wypisy aktu notarialnego - około
RAZEM (cena + opłaty)

Podobne oferty

bez prowizji
mieszkanie na sprzedaż - Kraków, Dębniki, Ruczaj

mieszkanie na sprzedaż

Kraków, Dębniki, Ruczaj
2 pokoje 35,51 m2 17 910,45 zł/m2
bez prowizji
mieszkanie na sprzedaż - Kraków, Krowodrza

mieszkanie na sprzedaż

Kraków, Krowodrza
2 pokoje 39,52 m2 19 104,25 zł/m2
bez prowizji
mieszkanie na sprzedaż - Kraków, Krowodrza

mieszkanie na sprzedaż

Kraków, Krowodrza
3 pokoje 43,76 m2 17 138,94 zł/m2
bez prowizji
mieszkanie na sprzedaż - Kraków, Krowodrza

mieszkanie na sprzedaż

Kraków, Krowodrza
2 pokoje 38,52 m2 19 210,80 zł/m2

Napisz do nas

Proszę wypełnić to pole
Proszę wypełnić to pole
Proszę wypełnić to pole
Proszę wypełnić to pole
Trwa wysyłanie...

Ta strona wykorzystuje pliki cookies w celach statystycznych oraz w celu dostosowania naszych serwisów do indywidualnych potrzeb klientów. Zmiany ustawień dotyczących plików cookie można dokonać w dowolnej chwili modyfikując ustawienia przeglądarki. Korzystanie z tej strony bez zmian ustawień dotyczących cookies oznacza, że będą one zapisane w pamięci urządzenia.

rozumiem