Kraków, Dębniki, Ruczaj

Mieszkanie na sprzedaż

Opis nieruchomości

Dębniki, Ruczaj ok. ul. Bunscha
Mieszkanie dostępne bez prowizji oraz 2%PCC


Promocyjna cena mieszkania: 636 6000zł zamiast 650 250zł

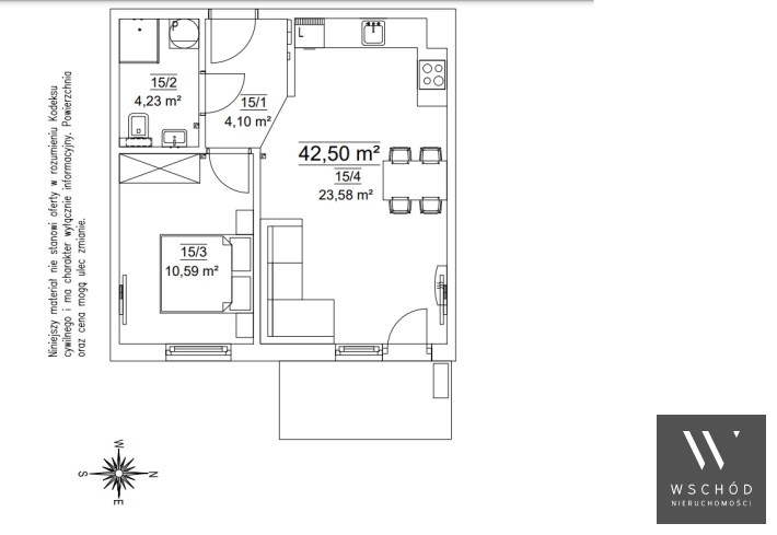
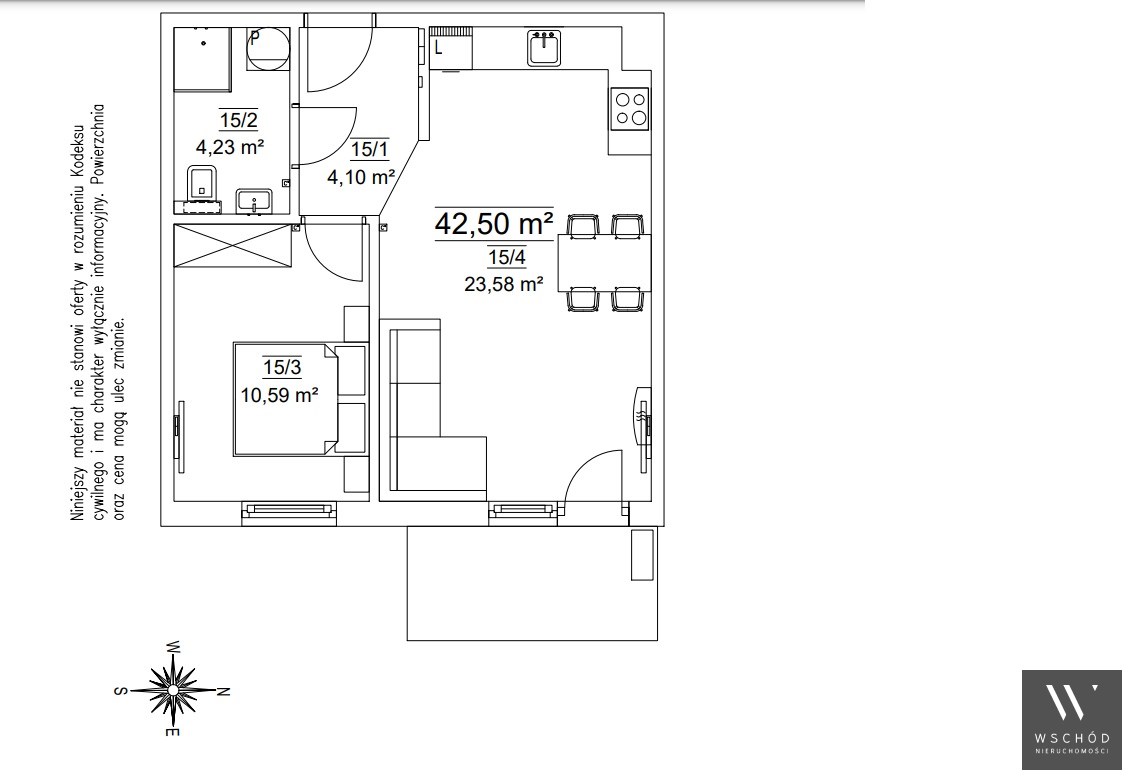
Do sprzedania komfortowe  2 pokojowe mieszkanie o powierzchni 42 m2 położone na 1 piętrze 3 piętrowego bloku. 
Mieszkanie składające się z salonu z aneksem kuchennym , sypialni, przedpokoju, łazienki oraz balkonu
  • Mieszkanie w stanie deweloperskim: ogrzewanie podłogowe, klimatyzacja wraz z jednostkami, płytki na balkonie, okna PCV
  • Kameralna niska zabudowa
  • Miejsce postojowe w hali garażowej: od 36.000zł (zakup obowiązkowy)
  • Miejsca postojowe zewnętrzne: 30.000zł
  • Mieszkanie gotowe do odbioru
  • Ekspozycja okien: wschód
Zapraszam na prezentację
Agnieszka Nowak tel. 666 312 237

Wschód nieruchomości
 
  • Kupując mieszkanie za naszym pośrednictwem nie płacisz prowizji , wszystkie ceny mieszkań są cenami Dewelopera wraz z aktualnymi promocjami
  • Otrzymujesz karty rabatowe -15% do sklepów Bel - Pol oraz kupon rabatowy -10% do sklepów Leroy Merlin
  • Dodatkowo możesz skorzystać z darmowej obsługi Doradcy Kredytowego firmy Notus oraz oferty firmy wykończeniowej Excellent

Nota prawna

Opis oferty zawarty na stronie internetowej sporządzany jest na podstawie oględzin nieruchomości oraz informacji uzyskanych od właściciela, może podlegać aktualizacji i nie stanowi oferty określonej w art. 66 i następnych K.C.

Szczegóły oferty

Symbol oferty WSCH-MS-7667
Powierzchnia 42,50 m²
Powierzchnia użytkowa 42,50 m²
Liczba pokoi 2
Piętro 1
Rodzaj budynku blok
Technologia budowlana mieszana
Standard
Opłaty w czynszu woda ciepła, Winda, sprzątanie, fundusz remontowy, CO
Opłaty wg liczników prąd
Liczba pięter w budynku 3
Garaż garaż pod budynkiem
Stan lokalu deweloperski
Okna PCV
Balkon średni
Liczba balkonów 1
Rok budowy 2025
Widok na podwórko
Gaz brak
Dojazd kostka brukowa
Ogrzewanie C.O. Z SIECI MIEJSKIEJ
Winda tak
Liczba wind 1
Usytuowanie jednostronne

Lokalizacja

Kalkulator kredytowy

PLN
%
Wysokość raty

Kalkulator kosztów

PLN
PLN
PLN
PLN
PLN
PLN
%
PLN
Podatek od czynności cywilno-prawnych
Taksa notarialna (opłata notarialna)
VAT od taksy notarialnej (opłaty notarialnej)
Wniosek do WKW
VAT od wniosku do WKW
Prowizja agencji nieruchomości
VAT od prowizji agencji nieruchomości
Wypisy aktu notarialnego - około
RAZEM (cena + opłaty)

Podobne oferty

bez prowizji
mieszkanie na sprzedaż - Kraków, Bieżanów-Prokocim, Złocień

mieszkanie na sprzedaż

Kraków, Bieżanów-Prokocim, Złocień
4 pokoje 57,27 m2 14 300,00 zł/m2
bez prowizji
mieszkanie na sprzedaż - Kraków, Prądnik Biały

mieszkanie na sprzedaż

Kraków, Prądnik Biały
3 pokoje 47,62 m2 15 302,94 zł/m2
bez prowizji
mieszkanie na sprzedaż - Kraków, Prądnik Biały

mieszkanie na sprzedaż

Kraków, Prądnik Biały
3 pokoje 51,91 m2 15 876,83 zł/m2
bez prowizji
mieszkanie na sprzedaż - Kraków, Prądnik Biały

mieszkanie na sprzedaż

Kraków, Prądnik Biały
3 pokoje 50,73 m2 15 750,05 zł/m2

Napisz do nas

Proszę wypełnić to pole
Proszę wypełnić to pole
Proszę wypełnić to pole
Proszę wypełnić to pole
Trwa wysyłanie...

Ta strona wykorzystuje pliki cookies w celach statystycznych oraz w celu dostosowania naszych serwisów do indywidualnych potrzeb klientów. Zmiany ustawień dotyczących plików cookie można dokonać w dowolnej chwili modyfikując ustawienia przeglądarki. Korzystanie z tej strony bez zmian ustawień dotyczących cookies oznacza, że będą one zapisane w pamięci urządzenia.

rozumiem