Kraków, Krowodrza

Mieszkanie na sprzedaż

Opis nieruchomości

Mieszkanie dostępne bez prowizji dla Klienta Kupującego


Krowodrza, al. Kijowska 13 

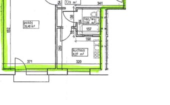
Do sprzedania komfortowe 1 pokojowe mieszkanie o pow. 38,73m2 położone na 4 piętrze  4 piętrowego bloku ( brak windy)
Mieszkanie składające się z przestronnego pokoju z wyjściem na balkon, oddzielnej kuchni z oknem, przedpokoju oraz łazienki.
  • Stan mieszkania dobry, wymagający odświeżenia. Na podłogach panele podłogowe, okna PCV.
  • Ekspozycja okien: południowy wschód
  • Czynsz ok. 570zł /2 osoby
  • Ogrzewanie z sieci miejskiej, ciepła woda z piecyka gazowego
  • Do mieszkania przynależy komórka lokatorska
  • Mieszkanie własnościowe
  • Bardzo dobra lokalizacja, w sąsiedztwie przystanki autobusowe oraz tramwajowe, niezbędna infrastruktura handlowo - usługowa , zaledwie 2km od Rynku Głównego
  • Bliskość Krakowskich Uczelni: Uniwersytet Pedagogiczny, AGH, Miasteczko studenckie AGH, WSZiB
  • W cenie mieszkania wyposażenie widoczne na zdjęciach
Zapraszam na prezentację
Agnieszka Nowak tel. 666 312 237
 
 

Nota prawna

Opis oferty zawarty na stronie internetowej sporządzany jest na podstawie oględzin nieruchomości oraz informacji uzyskanych od właściciela, może podlegać aktualizacji i nie stanowi oferty określonej w art. 66 i następnych K.C.

Szczegóły oferty

Symbol oferty WSCH-MS-7451
Powierzchnia 38,73 m²
Powierzchnia użytkowa 38,73 m²
Liczba pokoi 1
Piętro 4
Rodzaj budynku blok
Standard
Opłaty w czynszu CO, ogrzewanie, Winda
Liczba pięter w budynku 4
Stan lokalu dobry
Okna PCV
Liczba balkonów 1
Widok na podwórko
Gaz jest
Dojazd asfalt
Usytuowanie jednostronne

Kalkulator kredytowy

PLN
%
Wysokość raty

Kalkulator kosztów

PLN
PLN
PLN
PLN
PLN
PLN
%
PLN
Podatek od czynności cywilno-prawnych
Taksa notarialna (opłata notarialna)
VAT od taksy notarialnej (opłaty notarialnej)
Wniosek do WKW
VAT od wniosku do WKW
Prowizja agencji nieruchomości
VAT od prowizji agencji nieruchomości
Wypisy aktu notarialnego - około
RAZEM (cena + opłaty)

Podobne oferty

bez prowizji
mieszkanie na sprzedaż - Kraków, Bieżanów-Prokocim, Złocień

mieszkanie na sprzedaż

Kraków, Bieżanów-Prokocim, Złocień
2 pokoje 40,24 m2 15 650,00 zł/m2
bez prowizji
mieszkanie na sprzedaż - Kraków, Bieżanów-Prokocim, Złocień

mieszkanie na sprzedaż

Kraków, Bieżanów-Prokocim, Złocień
4 pokoje 57,27 m2 14 300,00 zł/m2
bez prowizji
mieszkanie na sprzedaż - Kraków, Bieżanów-Prokocim, Złocień

mieszkanie na sprzedaż

Kraków, Bieżanów-Prokocim, Złocień
3 pokoje 51,10 m2 14 250,00 zł/m2
bez prowizji
mieszkanie na sprzedaż - Kraków, Dębniki, Ruczaj

mieszkanie na sprzedaż

Kraków, Dębniki, Ruczaj
2 pokoje 55,35 m2 13 369,47 zł/m2

Napisz do nas

Proszę wypełnić to pole
Proszę wypełnić to pole
Proszę wypełnić to pole
Proszę wypełnić to pole
Trwa wysyłanie...

Ta strona wykorzystuje pliki cookies w celach statystycznych oraz w celu dostosowania naszych serwisów do indywidualnych potrzeb klientów. Zmiany ustawień dotyczących plików cookie można dokonać w dowolnej chwili modyfikując ustawienia przeglądarki. Korzystanie z tej strony bez zmian ustawień dotyczących cookies oznacza, że będą one zapisane w pamięci urządzenia.

rozumiem