Kraków, Nowa Huta

Mieszkanie na sprzedaż

Opis nieruchomości

Nowa inwestycja dostępna bez prowizji oraz 2% PCC

Nowa Huta - mieszkania gotowe do odbioru



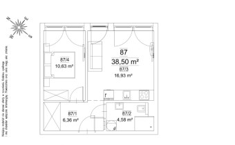
Do sprzedania komfortowe 2 pokojowe mieszkanie o pow. 39m2 położone na 3 piętrze 4 piętrowego budynku z 2026r
Mieszkanie składające się z salonu z aneksem kuchennym, sypialni, przedpokoju oraz łazienki. 
  • Mieszkania posiadają duże przeszklenia dzięki czemu są bardzo dobrze naświetlone i optycznie przestrzeń wydaje się dużo większa
  • Stan deweloperski + ogrzewanie podłogowe oraz klimatyzacja wraz z jednostkami. W budynku znajdują się dwie windy
  • Ekspozycja okien: północny wschód
  • Mieszkania gotowe do odbioru
  • Ogrzewanie oraz ciepła woda z sieci MPEC
  • Inwestycja znajduje się w jednej z najbardziej zielonych części Krakowa , dużo światła, drzew oraz przestrzeni do życia.
  • Bardzo dobry dojazd do centrum (linie autobusowe oraz tramwajowe)
  • Budynek charakteryzuje się harmonijną architekturą 
Zapraszam na prezentację
Agnieszka Nowak tel. 666 312 237

Nota prawna

Opis oferty zawarty na stronie internetowej sporządzany jest na podstawie oględzin nieruchomości oraz informacji uzyskanych od właściciela, może podlegać aktualizacji i nie stanowi oferty określonej w art. 66 i następnych K.C.

Szczegóły oferty

Symbol oferty WSCH-MS-7725
Powierzchnia 38,50 m²
Powierzchnia użytkowa 38,50 m²
Liczba pokoi 2
Piętro 3
Rodzaj budynku blok
Technologia budowlana pustak ceramiczny
Standard
Liczba pięter w budynku 4
Stan lokalu deweloperski
Stan prawny Własność
Okna PCV
Balkon brak
Rok budowy 2026
Liczba wind 2
Usytuowanie jednostronne

Lokalizacja

Kalkulator kredytowy

PLN
%
Wysokość raty

Kalkulator kosztów

PLN
PLN
PLN
PLN
PLN
PLN
%
PLN
Podatek od czynności cywilno-prawnych
Taksa notarialna (opłata notarialna)
VAT od taksy notarialnej (opłaty notarialnej)
Wniosek do WKW
VAT od wniosku do WKW
Prowizja agencji nieruchomości
VAT od prowizji agencji nieruchomości
Wypisy aktu notarialnego - około
RAZEM (cena + opłaty)

Podobne oferty

bez prowizji
mieszkanie na sprzedaż - Kraków, Prądnik Biały

mieszkanie na sprzedaż

Kraków, Prądnik Biały
3 pokoje 51,91 m2 15 876,83 zł/m2
bez prowizji
mieszkanie na sprzedaż - Kraków, Podgórze, Zabłocie

mieszkanie na sprzedaż

Kraków, Podgórze, Zabłocie
1 pokój 30,82 m2 18 688,19 zł/m2
bez prowizji
mieszkanie na sprzedaż - Kraków, Podgórze, Zabłocie

mieszkanie na sprzedaż

Kraków, Podgórze, Zabłocie
1 pokój 32,84 m2 19 564,56 zł/m2
bez prowizji
mieszkanie na sprzedaż - Kraków, Bieżanów-Prokocim, Złocień

mieszkanie na sprzedaż

Kraków, Bieżanów-Prokocim, Złocień
2 pokoje 38,58 m2 15 750,00 zł/m2

Napisz do nas

Proszę wypełnić to pole
Proszę wypełnić to pole
Proszę wypełnić to pole
Proszę wypełnić to pole
Trwa wysyłanie...

Ta strona wykorzystuje pliki cookies w celach statystycznych oraz w celu dostosowania naszych serwisów do indywidualnych potrzeb klientów. Zmiany ustawień dotyczących plików cookie można dokonać w dowolnej chwili modyfikując ustawienia przeglądarki. Korzystanie z tej strony bez zmian ustawień dotyczących cookies oznacza, że będą one zapisane w pamięci urządzenia.

rozumiem