Kraków, Prądnik Czerwony

Mieszkanie na sprzedaż

Opis nieruchomości

Prądnik Czerwony

Nowe mieszkania dostępne bez prowizji oraz 2% PCC

Mieszkania dostępne do odbioru już w tym roku

Promocyjna cena mieszkania obowiązująca do 30.04 + klimatyzacja gratis (bez montażu)
687 750zł zamiast 733 600zł


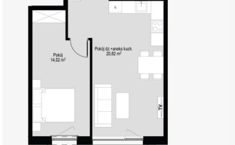
Do sprzedania komfortowe 2 pokojowe mieszkanie o pow. 45m2 położone na 4 piętrze 6 piętrowego bloku. 
Mieszkanie składające się z salonu z aneksem kuchennym,  sypialni, przedpokoju, łazienki oraz balkonu
  • Mieszkania oddawane w stanie deweloperskim
  • Miejsca postojowe w hali garażowej: 45.000zł (platforma parkingowa)
  • Ekspozycja okien: południowy wschód
  • Termin oddania inwestycji: II kw. 2026r
  • Ogrzewanie oraz ciepła woda z sieci MPEC
  • Bardzo dobra lokalizacja - 5km od starego miasta, w sąsiedztwie przystanki autobusowe, markety (BIEDRONKA), osiedlowe sklepy, żłobek, przedszkole, Park Zaczarowanej Dorożki, 

Zapraszam do kontaktu
Agnieszka Nowak tel. 666 312 237

 

Nota prawna

Opis oferty zawarty na stronie internetowej sporządzany jest na podstawie oględzin nieruchomości oraz informacji uzyskanych od właściciela, może podlegać aktualizacji i nie stanowi oferty określonej w art. 66 i następnych K.C.

Szczegóły oferty

Symbol oferty WSCH-MS-7774
Powierzchnia 45,85 m²
Powierzchnia użytkowa 45,85 m²
Powierzchnia balkonów/tarasów 6,75 m²
Liczba pokoi 2
Piętro 4
Rodzaj budynku blok
Technologia budowlana tradycyjna
Standard
Opłaty w czynszu fundusz remontowy, CO, monitoring, ogrzewanie, sprzątanie, Winda
Opłaty wg liczników prąd
Liczba pięter w budynku 6
Garaż garaż pod budynkiem
Stan lokalu deweloperski
Okna PCV
Balkon duży
Liczba balkonów 1
Rok budowy 2026
Dojazd asfalt
Winda tak
Liczba wind 1
Usytuowanie narożne

Pomieszczenia

Rodzaj kuchni aneks kuchenny - połączony z salonem

Kalkulator kredytowy

PLN
%
Wysokość raty

Kalkulator kosztów

PLN
PLN
PLN
PLN
PLN
PLN
%
PLN
Podatek od czynności cywilno-prawnych
Taksa notarialna (opłata notarialna)
VAT od taksy notarialnej (opłaty notarialnej)
Wniosek do WKW
VAT od wniosku do WKW
Prowizja agencji nieruchomości
VAT od prowizji agencji nieruchomości
Wypisy aktu notarialnego - około
RAZEM (cena + opłaty)

Podobne oferty

bez prowizji
mieszkanie na sprzedaż - Kraków, Prądnik Biały

mieszkanie na sprzedaż

Kraków, Prądnik Biały
3 pokoje 51,91 m2 15 876,83 zł/m2
bez prowizji
mieszkanie na sprzedaż - Kraków, Podgórze, Zabłocie

mieszkanie na sprzedaż

Kraków, Podgórze, Zabłocie
1 pokój 30,82 m2 18 688,19 zł/m2
bez prowizji
mieszkanie na sprzedaż - Kraków, Podgórze, Zabłocie

mieszkanie na sprzedaż

Kraków, Podgórze, Zabłocie
1 pokój 32,84 m2 19 564,56 zł/m2
bez prowizji
mieszkanie na sprzedaż - Kraków, Bieżanów-Prokocim, Złocień

mieszkanie na sprzedaż

Kraków, Bieżanów-Prokocim, Złocień
2 pokoje 38,58 m2 15 750,00 zł/m2

Napisz do nas

Proszę wypełnić to pole
Proszę wypełnić to pole
Proszę wypełnić to pole
Proszę wypełnić to pole
Trwa wysyłanie...

Ta strona wykorzystuje pliki cookies w celach statystycznych oraz w celu dostosowania naszych serwisów do indywidualnych potrzeb klientów. Zmiany ustawień dotyczących plików cookie można dokonać w dowolnej chwili modyfikując ustawienia przeglądarki. Korzystanie z tej strony bez zmian ustawień dotyczących cookies oznacza, że będą one zapisane w pamięci urządzenia.

rozumiem