Kraków, Prądnik Biały

Mieszkanie na sprzedaż

Opis nieruchomości

Prądnik Biały 
Nowa inwestycja mieszkaniowa, dostępna bez prowizji oraz 2%PCC

Promocja do 31.12 
Komórka lokatorska gratis!


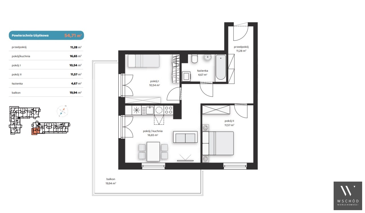
Do sprzedania komfortowe 3 pokojowe mieszkanie o pow. 54m2 położone na 2 piętrze piętrze 3 piętrowego budynku. 
Mieszkanie składające się z salonu z aneksem kuchennym, dwóch sypialni, przedpokoju, łazienki oraz balkonu o pow. 15m2
  • Ekspozycja okien: poÅ‚udnie zachód wschód
  • Mieszkania oddawane w stanie deweloperskim
  • Miejsca postojowe  hali garażowej ( 49.000zÅ‚ -55.000zÅ‚ miejsca postojowe, 35.000zÅ‚ platforma niezależna, )
  • Komórki lokatorskie
  • Miejsca postojowe green up (z gniazdem dla samochodów elektrycznych)
  • W sÄ…siedztwie przystanek autobusowy, 1 przystanek do linii tramwajowej PachoÅ„skiego Park & Ride
  • W odlegÅ‚oÅ›ci 200 m sklepy spożywcze- LIDL, BIEDRONKA, Apteka, Drogeria, Tedi, 
  • Tereny zielone: użytek ekologiczny Dolina PrÄ…dnika
  • Termin realizacji inwestycji: III kwartaÅ‚ 2026r
Zapraszam do kontaktu
Agnieszka Nowak tel. 666 312 237



 

Nota prawna

Opis oferty zawarty na stronie internetowej sporządzany jest na podstawie oględzin nieruchomości oraz informacji uzyskanych od właściciela, może podlegać aktualizacji i nie stanowi oferty określonej w art. 66 i następnych K.C.

Szczegóły oferty

Symbol oferty WSCH-MS-7234
Powierzchnia 54,71 m²
Powierzchnia balkonów/tarasów 19,94 m²
Liczba pokoi 3
Piętro 2
Rodzaj budynku blok
Technologia budowlana pustak ceramiczny
Standard
Opłaty w czynszu ogrzewanie, monitoring, fundusz remontowy, CO
Liczba pięter w budynku 3
Garaż garaż pod budynkiem
Stan lokalu deweloperski
Okna PCV
Balkon taras
Liczba balkonów 1
Rok budowy 2026
Gaz brak
Woda ciepła - miejska
Ogrzewanie C.O. miejskie
Winda tak
Liczba wind 2
Usytuowanie narożne

Kalkulator kredytowy

PLN
%
Wysokość raty

Kalkulator kosztów

PLN
PLN
PLN
PLN
PLN
PLN
%
PLN
Podatek od czynności cywilno-prawnych
Taksa notarialna (opłata notarialna)
VAT od taksy notarialnej (opłaty notarialnej)
Wniosek do WKW
VAT od wniosku do WKW
Prowizja agencji nieruchomości
VAT od prowizji agencji nieruchomości
Wypisy aktu notarialnego - około
RAZEM (cena + opłaty)

Podobne oferty

bez prowizji
mieszkanie na sprzedaż - Kraków, Prądnik Czerwony

mieszkanie na sprzedaż

Kraków, Prądnik Czerwony
2 pokoje 46,01 m2 16 952,84 zÅ‚/m2
bez prowizji
mieszkanie na sprzedaż - Kraków, Podgórze, Zabłocie

mieszkanie na sprzedaż

Kraków, Podgórze, Zabłocie
2 pokoje 42,96 m2 21 825,77 zÅ‚/m2
bez prowizji
mieszkanie na sprzedaż - Kraków, Bieżanów-Prokocim, Złocień

mieszkanie na sprzedaż

Kraków, Bieżanów-Prokocim, Złocień
3 pokoje 54,87 m2 16 450,00 zÅ‚/m2
bez prowizji
mieszkanie na sprzedaż - Kraków, Prądnik Biały

mieszkanie na sprzedaż

Kraków, Prądnik Biały
2 pokoje 39,76 m2 16 975,00 zÅ‚/m2

Napisz do nas

Proszę wypełnić to pole
Proszę wypełnić to pole
Proszę wypełnić to pole
Proszę wypełnić to pole
Trwa wysyłanie...

Ta strona wykorzystuje pliki cookies w celach statystycznych oraz w celu dostosowania naszych serwisów do indywidualnych potrzeb klientów. Zmiany ustawień dotyczących plików cookie można dokonać w dowolnej chwili modyfikując ustawienia przeglądarki. Korzystanie z tej strony bez zmian ustawień dotyczących cookies oznacza, że będą one zapisane w pamięci urządzenia.

rozumiem