Opis nieruchomości
Mieszkanie dostępne bez prowizji oraz 2% PCC
Promocja do 31.12
810 600zł zamiast
924 100zł
W cenie system smart home premium
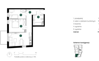
Do sprzedaży 3 pokojowe mieszkanie o pow. 51 m2 położona na 1 piętrze 3 piętrowego budynku z windą.
Mieszkanie składające się z pokoju z aneksem kuchennym , dwóch sypialni, łazienki oraz balkonu.
- Ekspozycja okien: południowy zachód
- Mieszkania oddawane w stanie deweloperskim obejmującym m.in. okna PCV trzyszybowe, drzwi wejściowe antywłamaniowe, filtry antysmogowe
- Stacja ładowania samochodów elektrycznych, stojaki rowerowe
- Doskonała lokalizacja, w sąsiedztwie liczne tereny zielone (m.in. Park Rzeczny Wilga, Park Zdrojowy Mateczny. Zakrzówek)
- Mieszkanie gotowe do odbioru
Zapraszam na spotkanie
Agnieszka Nowak tel. 666 312 237
Wschód nieruchomości
Nota prawna
Opis oferty zawarty na stronie internetowej sporządzany jest na podstawie oględzin nieruchomości oraz informacji uzyskanych od właściciela, może podlegać aktualizacji i nie stanowi oferty określonej w art. 66 i następnych K.C.