Kraków, Krowodrza

Mieszkanie na sprzedaż

Opis nieruchomości

Mieszkania gotowe do odbioru, bez prowizji oraz 2% PCC


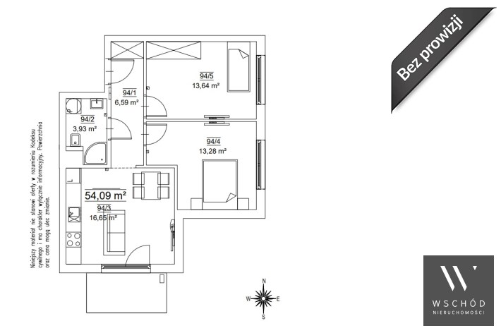
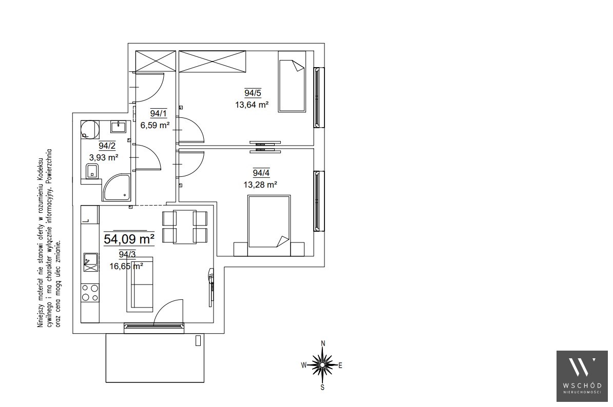
Do sprzedania komfortowe 3  mieszkanie o pow. 54m2 położone na ostatnim 7 piętrowego bloku. 
Mieszkanie składające się z salonu z aneksem kuchennym, dwóch sypialni , przedpokoju, łazienki oraz balkonu
  • Mieszkania oddawane w stanie deweloperskim obejmującym m.in.  okna trzyszybowe z nawiewnikami wyposażone w filtry antysmogowe, biały montaż, instalacja klimatyzacji w salonie, drzwi wejściowe antywłamaniowe, ogrzewanie podłogowe
  • Ekspozycja okien: południowy wschód
  • Ogrzewanie oraz ciepła woda z sieci MPEC
  • Grunt: własność
  • Miejsca postojowe w hali garażowej od 51.000zł 
  • Bardzo dobra lokalizacja - w sąsiedztwie niezbędna infrastruktura handlowo - usługowa, w odległości 500m przystanek tramwajowy, 200m przystanek autobusowy

Zapraszam na prezentację
Agnieszka Nowak tel. 666 312 237
Wschód nieruchomości

 

Nota prawna

Opis oferty zawarty na stronie internetowej sporządzany jest na podstawie oględzin nieruchomości oraz informacji uzyskanych od właściciela, może podlegać aktualizacji i nie stanowi oferty określonej w art. 66 i następnych K.C.

Szczegóły oferty

Symbol oferty WSCH-MS-7232
Powierzchnia 54,09 m²
Liczba pokoi 3
Piętro 7
Rodzaj budynku blok
Technologia budowlana pustak ceramiczny
Standard
Opłaty w czynszu administracja, CO, Części wspólne, ogrzewanie, Winda, woda ciepła
Opłaty wg liczników prąd
Liczba pięter w budynku 7
Garaż garaż pod budynkiem
Stan lokalu deweloperski
Okna PCV
Instalacje nowe
Balkon średni
Liczba balkonów 1
Rok budowy 2024
Gaz brak
Woda ciepła - miejska
Dojazd asfalt
Ogrzewanie C.O. miejskie
Winda tak
Liczba wind 1
Usytuowanie narożne

Pomieszczenia

Rodzaj kuchni aneks kuchenny - połączony z salonem

Kalkulator kredytowy

PLN
%
Wysokość raty

Kalkulator kosztów

PLN
PLN
PLN
PLN
PLN
PLN
%
PLN
Podatek od czynności cywilno-prawnych
Taksa notarialna (opłata notarialna)
VAT od taksy notarialnej (opłaty notarialnej)
Wniosek do WKW
VAT od wniosku do WKW
Prowizja agencji nieruchomości
VAT od prowizji agencji nieruchomości
Wypisy aktu notarialnego - około
RAZEM (cena + opłaty)

Podobne oferty

bez prowizji
mieszkanie na sprzedaż - Kraków, Bieżanów-Prokocim, Złocień

mieszkanie na sprzedaż

Kraków, Bieżanów-Prokocim, Złocień
4 pokoje 57,27 m2 14 300,00 zł/m2
bez prowizji
mieszkanie na sprzedaż - Kraków, Bieżanów-Prokocim, Złocień

mieszkanie na sprzedaż

Kraków, Bieżanów-Prokocim, Złocień
3 pokoje 51,10 m2 14 250,00 zł/m2
bez prowizji
mieszkanie na sprzedaż - Kraków, Dębniki, Ruczaj

mieszkanie na sprzedaż

Kraków, Dębniki, Ruczaj
2 pokoje 55,35 m2 13 369,47 zł/m2
bez prowizji
mieszkanie na sprzedaż - Kraków, Dębniki, Ruczaj

mieszkanie na sprzedaż

Kraków, Dębniki, Ruczaj
3 pokoje 65,65 m2 15 957,99 zł/m2

Napisz do nas

Proszę wypełnić to pole
Proszę wypełnić to pole
Proszę wypełnić to pole
Proszę wypełnić to pole
Trwa wysyłanie...

Ta strona wykorzystuje pliki cookies w celach statystycznych oraz w celu dostosowania naszych serwisów do indywidualnych potrzeb klientów. Zmiany ustawień dotyczących plików cookie można dokonać w dowolnej chwili modyfikując ustawienia przeglądarki. Korzystanie z tej strony bez zmian ustawień dotyczących cookies oznacza, że będą one zapisane w pamięci urządzenia.

rozumiem