Kraków, Prądnik Biały

Mieszkanie na sprzedaż

Opis nieruchomości

Prądnik Biały

Inwestycja dostępna bez prowizji oraz 2% PCC

Promocja do 30.11
W cenie mieszkania miejsce garażowe, system smart home premium


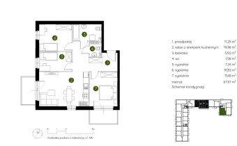
Do sprzedania 4 pokojowe mieszkanie o pow.64m2 położone na ostatnim piętrze 4 piętrowego bloku z windą. 
Mieszkanie składające się z salonu z aneksem kuchennym , trzech sypialni, przedpokoju, łazienki, WC  oraz dwóch balkonów
  • Ekspozycja okien: południowy wschód/ zachód
  • Miejsca postojowe zewnętrzne: 20.000zł miejsce garażowe: 30.000zł
  • Termin oddania inwestycji: IV kw. 2027r
Zapraszam do kontaktu
Agnieszka Nowak tel. 666 312 237

Wschód nieruchomości
 

Nota prawna

Opis oferty zawarty na stronie internetowej sporządzany jest na podstawie oględzin nieruchomości oraz informacji uzyskanych od właściciela, może podlegać aktualizacji i nie stanowi oferty określonej w art. 66 i następnych K.C.

Szczegóły oferty

Symbol oferty WSCH-MS-7137
Powierzchnia 67,57 m²
Powierzchnia balkonów/tarasów 4,50 m²
Liczba pokoi 4
Piętro 4
Rodzaj budynku blok
Technologia budowlana pustak ceramiczny
Standard
Opłaty w czynszu ogrzewanie, CO, Winda, sprzątanie, woda ciepła
Liczba pięter w budynku 4
Garaż garaż pod budynkiem
Stan lokalu deweloperski
Okna PCV
Instalacje nowe
Balkon średni
Liczba balkonów 2
Rok budowy 2027
Winda tak
Liczba wind 2
Usytuowanie narożne

Kalkulator kredytowy

PLN
%
Wysokość raty

Kalkulator kosztów

PLN
PLN
PLN
PLN
PLN
PLN
%
PLN
Podatek od czynności cywilno-prawnych
Taksa notarialna (opłata notarialna)
VAT od taksy notarialnej (opłaty notarialnej)
Wniosek do WKW
VAT od wniosku do WKW
Prowizja agencji nieruchomości
VAT od prowizji agencji nieruchomości
Wypisy aktu notarialnego - około
RAZEM (cena + opłaty)

Podobne oferty

bez prowizji
mieszkanie na sprzedaż - Kraków, Krowodrza

mieszkanie na sprzedaż

Kraków, Krowodrza
3 pokoje 55,31 m2 16 488,88 zł/m2
bez prowizji
mieszkanie na sprzedaż - Kraków, Krowodrza

mieszkanie na sprzedaż

Kraków, Krowodrza
2 pokoje 43,87 m2 16 799,64 zł/m2
bez prowizji
mieszkanie na sprzedaż - Kraków, Krowodrza

mieszkanie na sprzedaż

Kraków, Krowodrza
2 pokoje 42,17 m2 16 433,48 zł/m2
bez prowizji
mieszkanie na sprzedaż - Kraków, Krowodrza

mieszkanie na sprzedaż

Kraków, Krowodrza
3 pokoje 54,09 m2 17 045,66 zł/m2

Napisz do nas

Proszę wypełnić to pole
Proszę wypełnić to pole
Proszę wypełnić to pole
Proszę wypełnić to pole
Trwa wysyłanie...

Ta strona wykorzystuje pliki cookies w celach statystycznych oraz w celu dostosowania naszych serwisów do indywidualnych potrzeb klientów. Zmiany ustawień dotyczących plików cookie można dokonać w dowolnej chwili modyfikując ustawienia przeglądarki. Korzystanie z tej strony bez zmian ustawień dotyczących cookies oznacza, że będą one zapisane w pamięci urządzenia.

rozumiem